Automatyczne Rysunki z Wykorzystaniem AI w Fusion 360
Fusion 360 wzbogacił się o nową funkcjonalność – automatyczne generowanie rysunków technicznych z wykorzystaniem sztucznej inteligencji (AI). Dzięki temu, tworzenie dokumentacji technicznej stało się prostsze i szybsze, szczególnie dla mniej skomplikowanych modeli. W tym artykule przeprowadzimy Cię przez kroki korzystania z tej funkcji i pokażemy, jak AI może ułatwić Twoją pracę.
Co to jest Drawing Automation?
Drawing Automation to nowa funkcjonalność Fusion 360, która wykorzystuje algorytmy sztucznej inteligencji do automatycznego generowania rysunków technicznych. Możesz używać tej funkcji zarówno dla części, jak i złożeń.

Jak korzystać z Drawing Automation?
- Kliknij prawym przyciskiem myszy na model w zakładce Browser.
- Wybierz opcję Create Drawing.
- Wybierz opcję Automated Drawing i dostosuj szablon (np. tabelkę rysunkową).
- Kliknij OK i poczekaj na wygenerowanie rysunku.

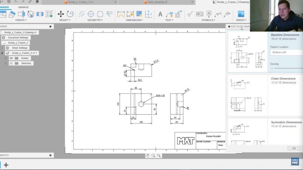
Edytowanie Wymiarów w Automatycznym Rysunku
Po wygenerowaniu rysunku możesz dostosować style wymiarowania:
- Baseline – wymiary od jednej linii bazowej.
- Symmetric – wymiary względem osi symetrii.
- Regulacja ilości wymiarów za pomocą suwaka.

Tworzenie Rysunku Złożeniowego
AI w Fusion 360 obsługuje również rysunki złożeniowe. Oto jak to zrobić:
- Kliknij prawym przyciskiem myszy na złożenie i wybierz Create Drawing.
- Wybierz opcję Automated Drawing i dostosuj ustawienia.
- Poczekaj na wygenerowanie rysunku.

Zalety i Wady Automatycznych Rysunków
Zalety:
- Znaczne przyspieszenie pracy dla prostych modeli.
- Automatyczne dostosowanie skali i rozkładu widoków.
- Możliwość manualnej edycji wygenerowanego rysunku.
Wady:
- Ograniczenia przy bardziej skomplikowanych modelach.
- Brak obsługi widoków przekrojowych (na chwilę obecną).

Podsumowanie
Drawing Automation w Fusion 360 to obiecujące narzędzie, które już teraz przyspiesza tworzenie rysunków technicznych. Chociaż wymaga jeszcze pewnych udoskonaleń, świetnie sprawdza się przy prostych modelach i podstawowych dokumentacjach.
Skontaktuj się z ekspertem
Kacper Musialik
 Specjalista ds. CAD/CAM/CAE
Specjalista ds. CAD/CAM/CAE
✔ Telefon: +48 693 001 910
✔ Email: k.musialik@mat.net.pl
Skontaktuj się z nami i rozpocznij projektowanie z Fusion 360
